€
EUR
Who are we
Properties
Contacts
More
Who are we
Properties
Contacts
0
0
Building
Porto, Porto
Back
\
Building - Porto, Porto
Share Property
Facebook
X
Pinterest
WhatsApp
Copy link
Link copiado
Imprimir ficha
Send property to a friend
Insert a name
Insert an email
Insira um endereço de email válido
Insert a name
Insert an email
Insira um endereço de email válido
I have read and agree to the terms and conditions set forth.
Know more »
To finish this operation you should read and agree with our conditions.
Required fields *
Send
Fotos
Vídeos
Plantas
Seguir imóvel
Seguir imóvel
Receba um alerta quando existir uma Baixa de Preço
Name
Insira o seu Nome
E-mail
Insira o seu email
Insira um endereço de email válido
Li e aceito a
Privacy Policy
To finish this operation you should read and agree with our conditions.
Insert the code from the image
Code
Send
Building, Porto, Porto
1 300 000 €
Ref:
PG3147
744 m²
748 m²
748 m²
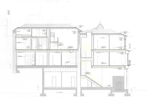
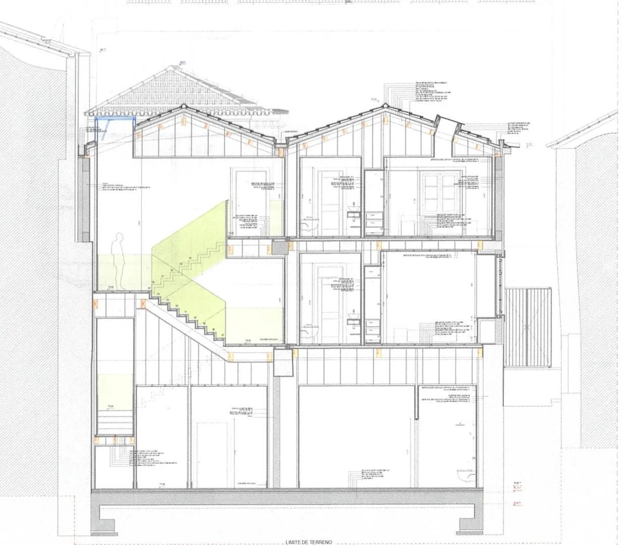
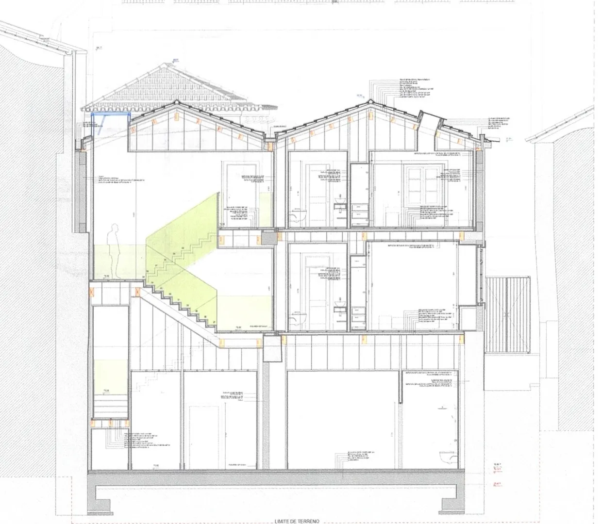
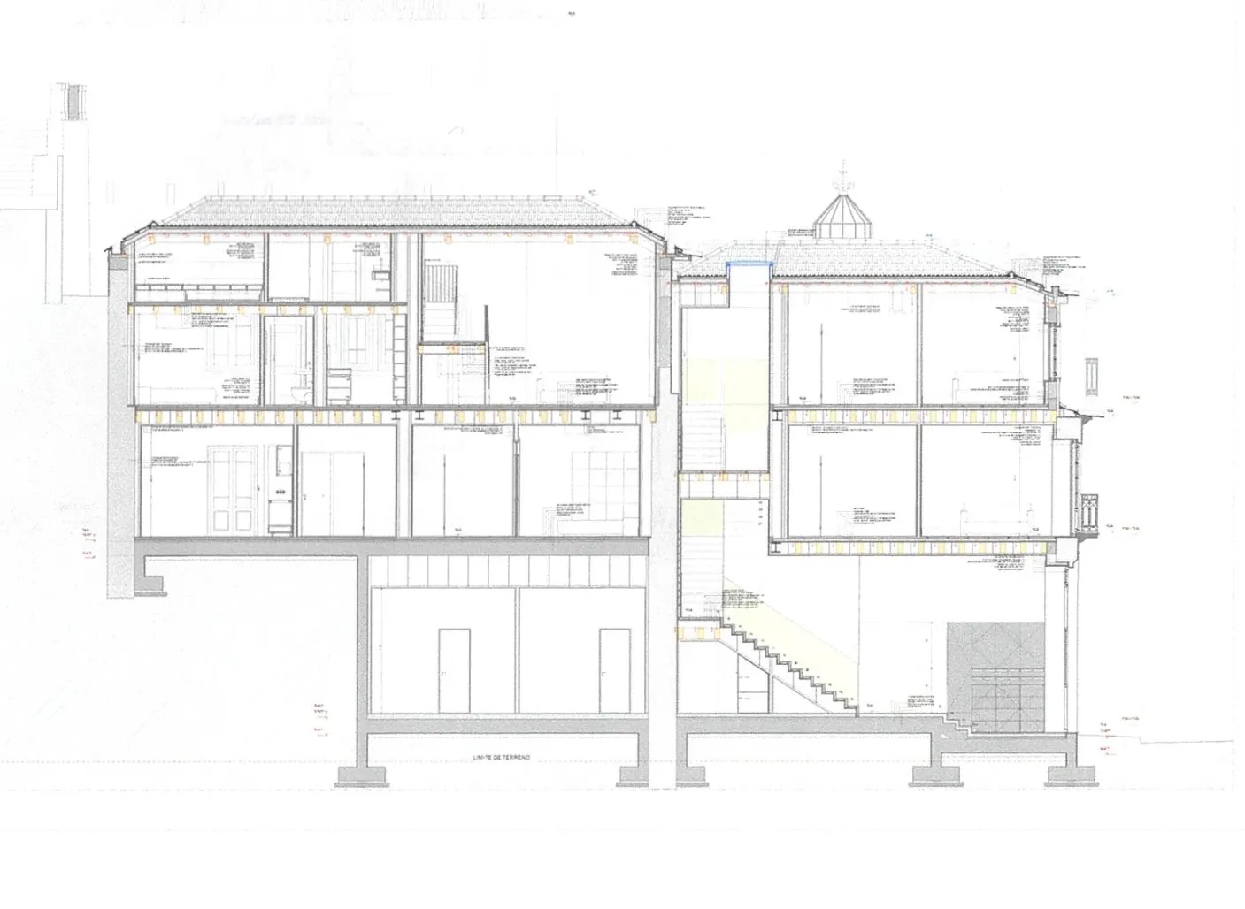
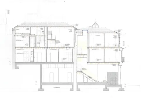
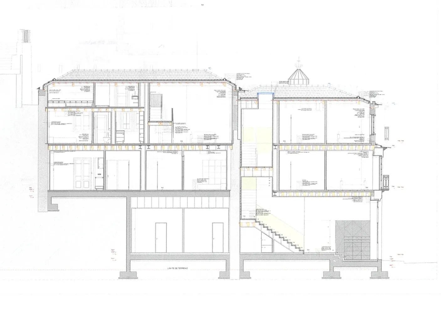
Building at Taipas street with approved project for construction and expansion.
The historic building with a wide facade to Taipas street, in the heart of the city, has a garden that confines with the Fernandina Wall.
The project foresees the alteration of facades, compartments, accesses and existing structure, expansion to the back on the ground floor and the increase of a floor on the rooftop, for the construction of 6 apartments and a commerce/services unit.
The building is located at Taipas street, in the Historic Centre of Porto classified by UNESCO as a World Heritage Site. It is part of the Priority Intervention Zone (ZIP), Priority Intervention Area (AIP) and the Critical Area of Urban Recovery and Reconversion (ACRRU).
Building Total Area - 410 m2
Total Construction Area - 748 m2
Gross Construction Area - 744 m2
Implantation Area - 236 m2
Nr. of floors - 3 plus mezanine
Nr. of units - 6 + a comercial unit
Tipo de imóvel
Building
Typology
0 Bedrooms
Objetivo
Sell
Condition
To be recovered
Price
1 300 000 €
Ano Construção
N/D
Country
Portugal
District
Porto
County
Porto
Parish
Cedofeita, Santo Ildefonso, Sé, Miragaia, São Nicolau e Vitória
Zona
N/D
Manuel Sousa-Pinto
+351 936 350 104
Chamada para a rede móvel nacional
I want to be contacted
Date
Time
Name
Insert a name
E-mail
Insert an email
Insira um endereço de email válido
Contacto
Insira o seu contacto telefónico
Message
I would like more information, without any commitment, about the property PG3147
I have read and agree to the terms and conditions set forth.
Privacy Policy
To finish this operation you should read and agree with our conditions.
Code
Insert the code shown in the image.
Send
General Features
Gerais
Rooms
Rooms
Area
Floor
Walls
Ceilings
Comments
Surroundings
Facilities
Domotic System (Home automation)
Renewable Energy
See too
Porto, Porto
3 300 000 €
Building
3 300 000 €
Building
Porto, Porto
1030 m²
A. Gross
1030 m²
A. Gross Private
865 m²
A. Useful
Contactar
Porto, Porto
1 100 000 €
Building
1 100 000 €
Building
Porto, Porto
560 m²
A. Gross
560 m²
A. Useful
Contactar
Porto, Porto
1 790 000 €
Building
1 790 000 €
Building
Porto, Porto
307 m²
A. Gross
307 m²
A. Gross Private
243 m²
A. Useful
64 m²
A. Land
Contactar
Mais imóveis +
We are available to help you
I want to be contacted
Date
Time
Name
Insert a name
E-mail
Insert an email
Insira um endereço de email válido
Contacto
Insert your contact details
Message
Li e aceito a
Privacy Policy
To finish this operation you should read and agree with our conditions.
Code
Insert the code shown in the image.
Send
O que é a pesquisa responsável
Esta pesquisa permite obter resultados mais ajustados à sua disponibilidade financeira.